Строительство деревянного автонавеса "94"

ХОТИТЕ ПОСТРОИТЬ ТАКОЙ ЖЕ ПРОЕКТ? МЫ СДЕЛАЕМ!

Подробнее о строительстве каркасного автонавеса "94"

Выполненные работы
Автонавес «94» — надежная защита для двух автомобилей!
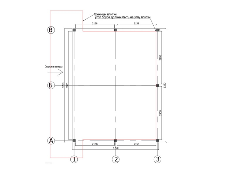
Теперь ваши оба автомобиля под надежной защитой! Просторный автонавес площадью 27,5 м² создан для комфортной парковки двух авто. Мощный брусовый каркас 150х150/200х150 мм и бурозаливной фундамент гарантируют устойчивость даже в непогоду. Металлочерепица надолго сохранит идеальный вид, а аккуратный софит и водосточная система ПВХ придают конструкции законченный внешний облик.
Характеристики и комплектация
Площадь
27,5 М2
Размер (пятно застройки)
6,25х4,4
Парковочных мест
2
Хоз. блок
Нет
Ограждение
Доска 100х25 (ест.влаж.)
Крыша
Односкатная
Фундамент
Бурозаливной
Каркас
Брус 150х150/200х150 (ест.влаж.)
Потолок
Софит
Отделка стен хоз. блока
Нет
Кровля
Профлист
Водосточная система
Металлочерепица
Стропильная система
Доска 150х100 (ест.влаж.)
НАШ РЕЗУЛЬТАТ
Все пожелания клиента учтены!
стоимость
работ
р
стоимость
материалов
р
ХОТИТЕ ПОСТРОИТЬ ТАКОЙ ЖЕ ПРОЕКТ? МЫ СДЕЛАЕМ!

Видеоотзывы о нас

Еще больше отзывов о нашей работе!