Строительство каркасного дома "Классик 3"

ХОТИТЕ ПОСТРОИТЬ ТАКОЙ ЖЕ ПРОЕКТ? МЫ СДЕЛАЕМ!

Подробнее о строительстве каркасного дома "Классик 3"

Выполненные работы
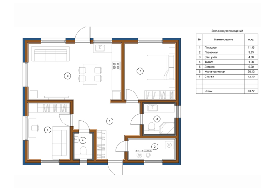
Сдержанность и элегантность дома «Классик-3» несомненно придётся по вкусу многим. Помимо внешней эстетичности, данной дом отличается ещё и максимально удобной планировкой. В нём есть просторная кухня-гостиная, спальня, прачечная, туалет, санузел и прихожая. Главным плюсом является наличие небольшого крылечка, которое поможет сохранить чистоту в доме. Срок реализации дома — 3 месяца.
Характеристики и комплектация
Площадь
80 М2
Размер (пятно застройки)
10х8
Размер террасы
Количество этажей
1
Количество спален
2
Количество санузлов
2
Гараж
Нет
Крыша
Двухскатная
Фундамент
Свайно-Ростверковый
Стены
Каркасные
Утепление стен
200 мм
Утепление перекрытие
Нет
Утепление крыша
250 мм
Внутренняя отделка пола
Ламинат/плитка
Внутренняя отделка стен
Имитация бруса
Внутренняя отделка потолок
Имитация бруса
Внутренняя отделка санузел
Плитка
Внутренняя отделка котельная
ГВЛ
Внешняя отделка стен
Планкен
Кровля
Мягкая
Водосточная система
ПВХ 135 мм
Терраса/крыльцо (пол)
Палубная доска лиственница
НАШ РЕЗУЛЬТАТ
Все пожелания клиента учтены!
стоимость
работ
р
стоимость
материалов
р
ХОТИТЕ ПОСТРОИТЬ ТАКОЙ ЖЕ ПРОЕКТ? МЫ СДЕЛАЕМ!

Видео о проекте

Еще больше отзывов о нашей работе!