Каркасный дом A-frame "128"

Немного о проекте
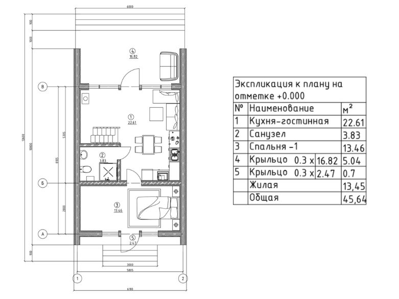
Уютный двухэтажный дом «С128» в стиле А-фрейм с двумя спальнями и просторными террасами.
Характеристики

Каркасный дом A-frame "128" - о проекте

Проект каркасного дома «128» в стиле A-frame — это не просто загородное строение, а архитектурное заявление. Лаконичная форма с высокой треугольной крышей, уходящей в фундамент, наполняет пространство светом и создает неповторимое ощущение простора. Дом идеально подходит для тех, кто ценит современный дизайн, экологичность материалов и надежность инженерных решений.

В облицовке использован принцип стильного контраста, который подчеркивает геометрию здания:

Вертикальные плоскости: Премиальная фальцевая система Кликфальц Pro Grand Line (толщина металла 0.45 мм) в благородном матовом оттенке RAL 7016. Это обеспечивает не только безупречный внешний вид, но и абсолютную герметичность фасада.

Торцевые зоны: Акцентная отделка из натурального дерева — планкен скошенный (сосна) с открытым типом крепления. Обработка маслом в оттенке «Шишка» подчеркивает естественную текстуру древесины, придавая дому уют и природную теплоту.

Дом спроектирован по каркасной технологии с использованием строганных пиломатериалов технической сушки и обязательной антисептической обработкой, что гарантирует геометрическую стабильность и долговечность конструкций.

Комплектация дома
Фундамент
Свайно забивной / свайно винтовой
Стены
Каркасные
Утепление стен
200 мм
Утепление перекрытия
200 мм
Утепление крыша
200 мм
Внутренняя отделка пола
ОСБ / ЦСП
Внутренняя отделка стен
Имитация / гипсокартон в 2 слоя под керамогранит
Внутренняя отделка потолок
Имитация бруса
Внутренняя отделка санузел
Имитация / гипсокартон в 2 слоя под керамогранит
Внутренняя отделка котельная
Нет
Внешняя отделка стен
Кликфальц / планкен скошенный сосна
Кровля
Кликфальц Pro Grand Line
Водосточная система
Нет
Терраса/крыльцо (пол)
Палубная доска лиственница
Этапы работ
1. Осмотр участка

Проведение инженерно-геологических изысканий для определения оптимального типа фундамента

2. Разработка проекта

Создание планировочного решения и визуального облика дома, части АР, КР, смета

3. Возведение фундамента

Возведение фундамента согласно проекту

4. Сборка силового каркаса дома

Возведение нижней обвязки, лаги пола, несущей стены, перегородки, перекрытий (по необходимости), стропильной системы

5. Наружная и внутренняя отделка

Выполнение работ по монтажу отделочных материалов согласно решению заказчика и архитектора

6. Фасадные работы

Работы по установке окон, дверей, прокладка коммуникаций

Преимущества заказа каркасного дома у нас

Видеоотзывы о наших проектах

Видео о проекте

Отзывы о нас

0-03
10.04.2025
Огромное спасибо вам, вашей команде, всем, кто был вообще связан с нашим проектом, воплотил нашу мечту. Вот обидно было, что так быстро закончилось наше сотрудничество) Мы решали все вопросы через телеграм, отвечали сразу же, что-то мы даже поменяли в процессе. Все профессионалы, молодцы! Максим архитектор молодец. То, что я просила, он все сделал, поменял, помогал, советовал. Виталий мастер, тоже молодец, знает свое дело и делает это быстро и качественно, и хорошо. И менеджер Анна всегда была на связи, писала и звонила. Владимир, спасибо и вам за вашу команду!
Ирина
0-03
23.03.2025
Конечно будем советовать вашу компанию, нам все понравилось. На самом деле не такое и длительное было сотрудничество, потому что ваша компания делала все оперативно и в срок. Огромный плюс это то, что минимальное присутствие заказчика на объекте. Ну и конечно же ты потом понимаешь, что все сделано качественно, все работает, все можно пользоваться и прекрасный вид. Негативных моментов с вами не возникало. Нам было, если честно, с вами в кайф работать.
Александр
0-03
15.03.2025
Удалось посотрудничать самым приятным образом! Мы воплотили в жизнь свою давнюю мечту. Предложение было разработано архитектором Максимом и нам очень понравилось, что получилось по итогу. Мы получаем большое удовольствие! Нам очень-очень понравилось сотрудничество с компанией. Не было ни какой головной боли, никаких вопросов. Все пожелания были учтены, самым наилучшим способом воплощены в жизнь самым наилучшим образом. И вот, наступит новый дачный сезон, и мы будем с удовольствие пользоваться новым хозпомещением!
Наталья
0-03
10.03.2025
Я нашла эту компанию через интернет, где они выложили свои работы на которые я посмотрела. Мне понравилось. И я решила обратиться именно к ним, по их визуалу я поняла, что это моя компания. Все что было спроектировано оно и воплотилось вот уже в террасу. И терраса мне понравились и строители, которые у меня работала.
Ольга
0-03
28.02.2025
Всем огромная благодарность!!! Всё чётко, аккуратно, надёжно и красиво!!!
Дмитрий Денисович
0-03
20.08.2024
Строительство автонавеса прошло без проблем. Команда СтройЛюкс профессиональна и внимательна к деталям. Я остался очень доволен качеством работы и рекомендую их всем! На объекте работал мастер Алексей.
Станислав
Еще больше отзывов о нашей работе !
Часто задаваемые вопросы
При правильном строительстве и уходе каркасный дом может прослужить 50–100 лет. Срок зависит от качества материалов, защиты от влаги и соблюдения строительных технологий.
Да, при хорошей теплоизоляции каркасные дома удерживают тепло не хуже кирпичных и деревянных. Главное — выбрать эффективное отопление.
Каркасный дом может выдерживать температуру до -50°C, если он утеплен в соответствии с климатическими нормами.
Обычно для каркасных домов используется свайно-винтовой, ленточный или плитный фундамент. Выбор зависит от грунта, особенностей климата и планируемого бюджета.
Каркасный дом, как правило, дешевле, так как требует меньше древесины, а монтаж быстрее. Но окончательная стоимость зависит от отделки и утепления.
В каркасных домах используют тёплый пол, газовые котлы или твердотопливные печи. Наиболее эффективным решением считается тёплый пол.
Оптимально начинать строительство весной или летом, чтобы избежать проблем с бетонированием фундамента и влагой.
Да, но для этого нужно соблюсти нормативы и получить разрешение на газификацию.
Причинами могут стать неправильная гидроизоляция, плохая вентиляция и излишняя влажность.
В среднем от 2 до 4 месяцев, в зависимости от площади и сложности конструкции.
Похожие проекты
Каркасный дом "Классик 27"

Площадь 111 М²
Этажи 1 ЭТАЖ
Фундамент СВАЙНО-РОСТВЕРКОВЫЙ
Размеры 13.1Х9.2 М + 3.6Х2.3 М
Комнаты 3 СПАЛЬНИ
Цена: 3 065 р/м²

ПОДРОБНЕЕ
Каркасный дом "Классик 3"

Площадь 80 М²
Этажи 1 ЭТАЖ
Фундамент СВАЙНО-РОСТВЕРКОВЫЙ
Размеры 10Х8 М
Комнаты 2 СПАЛЬНИ
Цена: 2 586 р/м²

ПОДРОБНЕЕ
Терраса "Дзержинск с окнами"

Площадь 23 М²
Вид террасы ОСТЕКЛЕННАЯ
Размеры 7.5Х3 М
Цена: 1 434 р/м²

ПОДРОБНЕЕ
Терраса "Мелковичи"

Площадь 13 М²
Вид террасы ОСТЕКЛЕННАЯ
Размеры 2.9Х5.45 М
Цена: 1 969 р/м²

ПОДРОБНЕЕ
Автонавес "Ждановичи"

Площадь 31 М²
Количество мест 2 МЕСТА
Хозблок БЕЗ ХОЗ. БЛОКА
Размеры 5.4Х5.8 М
Крыша ОДНОСКАТНАЯ
Цена: 494 р/м²

ПОДРОБНЕЕ
Автонавес "Мядель"

Площадь 36 М²
Количество мест 2 МЕСТА
Хозблок БЕЗ ХОЗ. БЛОКА
Размеры 6Х6 М
Крыша ДВУСКАТНАЯ
Цена: 680 р/м²

ПОДРОБНЕЕ
Баня "Модерн"

Площадь 24 М²
Назнаение ДЛЯ ДОМА/АРЕНДЫ
Размеры 6Х4 М
Терраса С ТЕРРАСОЙ
Цена: 2 583 р/м²

ПОДРОБНЕЕ
Беседка из бруса "88"

Площадь 12.6 М²
Вид беседки ОТКРЫТАЯ
Барбекю БЕЗ БАРБЕКЮ
Размеры 3.55х3.55 М
Санузел БЕЗ САНУЗЛА
Хоз.блок БЕЗ ХОЗ. БЛОКА
Цена: 817 р/м²

ПОДРОБНЕЕ