Дом А-Фрейм под ключ - проект каркасного дома с аттиковой стеной

Немного о проекте
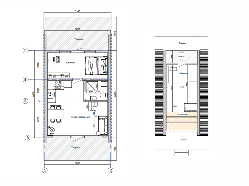
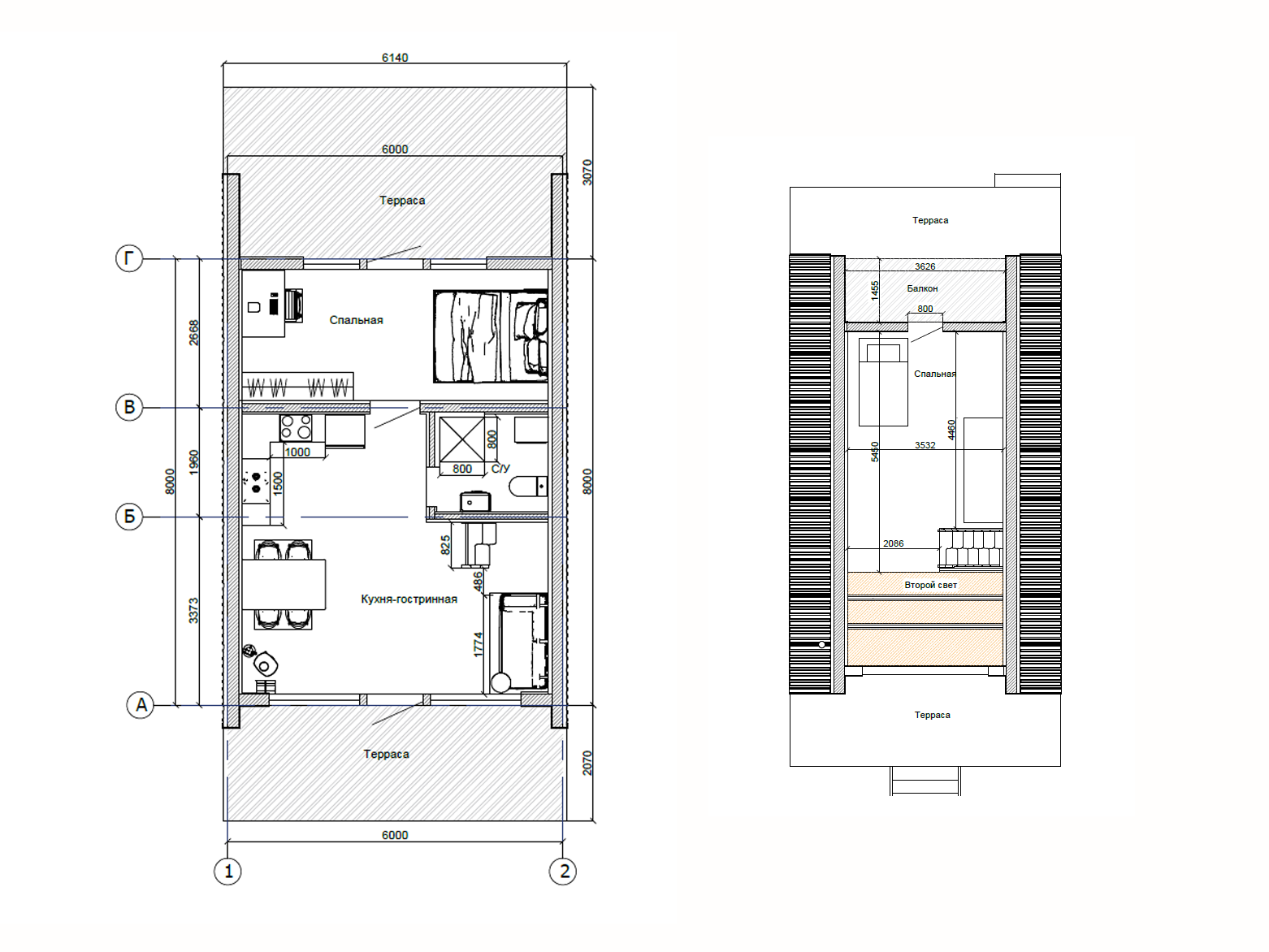
Дом «А-Фрейм» с аттиковой стеной включает все необходимое. На первом этаже располагаются кухня-гостиная, санузел, спальня. На втором этаже находится дополнительная спальная комната с выходом на балкон.
Характеристики
Цена: 121 850 р

Проект каркасного дома A-фрейм с аттиковой стеной

Дом А-фрейм — это стильное архитектурное решение с двухскатной крышей, которая начинается практически от земли и образует форму буквы «А». Конструкция имеет современный стильный дизайн и комфорт. Проект подходит для строительства под ключ в условиях климата в Беларуси. Такой формат дома особенно актуален для летнего сезона, круглогодичного проживания или для услуги сдачи в аренду.

Подробнее о проекте дома A-фрейм с аттиковой стеной

Данный объект реализован по технологии каркасного домостроения. Основные материалы — древесина камерной сушки и энергоэффективный утеплитель, позволяющие построить тёплый и надёжный дом.

Планировка включает проект дома А-фрейм:

  • открытую кухню-гостиную с выходом на террасу;
  • санузел;
  • спальную зону на первом этаже и спальню на втором этаже с выходом на балкон;
  • технические и хозяйственные помещения.

Главной особенностью данного проекта является наличие сразу двух террас, которые позволят комфортно проводить время на свежем воздухе.

От чего зависит цена проекта дома под A-фрейм

Итоговая цена проекта зависит от ряда факторов: вид утепления и отделочных материалов, наличие инженерных коммуникаций, объёма дополнительных опций (например, перепланировка).

Построить дом А-фрейм под ключ можно в базовой или индивидуальной комплектации, что также влияет на стоимость.

Особенности строительства каркасного дома A-фрейм под ключ

  • Быстрые сроки — сборка каркасной конструкции занимает минимальное время. Готовое жилье за месяц — очень даже реально.
  • Каркасная технология не зависит от сезона.
  • Гибкость планировки — можно внести изменения в проект дома A-фрейм на этапе согласования.
  • Вариативность отделки — фасад и интерьер могут быть оформлены по желанию клиента.

Преимущества домов в стиле A-фрейм

  • Необычный внешний вид — выделяется на фоне классических построек.
  • Энергоэффективность — благодаря малой площади стен и утеплённой кровле.
  • Компактность и функциональность — дом А-фрейм выглядит небольшим, но вмещает всё необходимое.
  • Экологичность — преимущественно используются натуральные материалы.

Комплектация дома "А-Фрейм" с аттиковой стеной

Фундамент
Свайно-винтовой
Стены
Каркасные
Утепление стен
200 мм
Утепление перектытия
200 мм
Утепление крыша
200 мм
Внутренняя отделка пола
ОСБ/ЦСП
Внутренняя отделка стен
Имитация бруса
Внутренняя отделка потолок
Имитация бруса
Внутренняя отделка санузел
Имитация бруса/Гипсокартон
Внутренняя отделка котельная
Нет
Внешняя отделка стен
Профлист/планкен
Кровля
Профлист
Водосточная система
Нет
Терраса/крыльцо (пол)
Палубная доска сосна

Этапы работ по строительству дома А-фрейм

1. Осмотр участка

Проведение инженерно-геологических изысканий для определения оптимального типа фундамента

2. Разработка проекта

Создание планировочного решения и визуального облика дома, части АР, КР, смета

3. Возведение фундамента

Возведение фундамента согласно проекту дома А-фрейм

4. Сборка силового каркаса дома

Возведение нижней обвязки, лаги пола, несущей стены, перегородки, перекрытий (по необходимости), стропильной системы

5. Наружная и внутренняя отделка

Выполнение работ по монтажу отделочных материалов согласно решению заказчика и архитектора

6. Фасадные работы

Работы по установке окон, дверей, прокладка коммуникаций

Варианты комплектаций дома под А-фрейм

Дом под А-фрейм — это отличное решение для тех, кто ищет сочетание стиля, уюта и практичности. Вы можете построить такой жилье на любом участке с подходящей инфраструктурой. Также доступны услуги по адаптации, если вам нужен индивидуальный проект.
СТАРТ
*Окончательную стоимость уточняйте у менеджера
Цена 121 850 р
Свайный фундамент
СТАНДАРТ
*Окончательную стоимость уточняйте у менеджера
Цена 142 500 р
Свайный фундамент
ПРЕМИУМ
*Окончательную стоимость уточняйте у менеджера
Цена от 155 000 р
Свайный фундамент

Преимущества заказа каркасного дома А-фрейм у нас

Видео о проекте

Отзывы о нас

0-03
10.04.2025
Огромное спасибо вам, вашей команде, всем, кто был вообще связан с нашим проектом, воплотил нашу мечту. Вот обидно было, что так быстро закончилось наше сотрудничество) Мы решали все вопросы через телеграм, отвечали сразу же, что-то мы даже поменяли в процессе. Все профессионалы, молодцы! Максим архитектор молодец. То, что я просила, он все сделал, поменял, помогал, советовал. Виталий мастер, тоже молодец, знает свое дело и делает это быстро и качественно, и хорошо. И менеджер Анна всегда была на связи, писала и звонила. Владимир, спасибо и вам за вашу команду!
Ирина
0-03
23.03.2025
Конечно будем советовать вашу компанию, нам все понравилось. На самом деле не такое и длительное было сотрудничество, потому что ваша компания делала все оперативно и в срок. Огромный плюс это то, что минимальное присутствие заказчика на объекте. Ну и конечно же ты потом понимаешь, что все сделано качественно, все работает, все можно пользоваться и прекрасный вид. Негативных моментов с вами не возникало. Нам было, если честно, с вами в кайф работать.
Александр
0-03
15.03.2025
Удалось посотрудничать самым приятным образом! Мы воплотили в жизнь свою давнюю мечту. Предложение было разработано архитектором Максимом и нам очень понравилось, что получилось по итогу. Мы получаем большое удовольствие! Нам очень-очень понравилось сотрудничество с компанией. Не было ни какой головной боли, никаких вопросов. Все пожелания были учтены, самым наилучшим способом воплощены в жизнь самым наилучшим образом. И вот, наступит новый дачный сезон, и мы будем с удовольствие пользоваться новым хозпомещением!
Наталья
0-03
10.03.2025
Я нашла эту компанию через интернет, где они выложили свои работы на которые я посмотрела. Мне понравилось. И я решила обратиться именно к ним, по их визуалу я поняла, что это моя компания. Все что было спроектировано оно и воплотилось вот уже в террасу. И терраса мне понравились и строители, которые у меня работала.
Ольга
0-03
28.02.2025
Всем огромная благодарность!!! Всё чётко, аккуратно, надёжно и красиво!!!
Дмитрий Денисович
0-03
20.08.2024
Строительство автонавеса прошло без проблем. Команда СтройЛюкс профессиональна и внимательна к деталям. Я остался очень доволен качеством работы и рекомендую их всем! На объекте работал мастер Алексей.
Станислав
Еще больше отзывов о нашей работе !
Часто задаваемые вопросы
При грамотном проектировании, использовании качественных материалов и регулярном обслуживании каркасный дом способен прослужить от 50 до 100 лет. На долговечность влияет защита конструкции от влаги и строгое соблюдение технологических процессов.
Да, такие дома отлично подходят для круглогодичного проживания. При правильно выполненном утеплении они удерживают тепло на уровне капитальных построек. Важно лишь выбрать надежную систему отопления.
Качественно утепленные каркасные здания рассчитаны на морозы вплоть до –50 C, что позволяет использовать их даже в регионах с суровым климатом.
На практике чаще всего применяют свайно-винтовые конструкции, ленточные основания или монолитные плиты. Выбор зависит от особенностей почвы и бюджета.
Каркасный вариант обычно обходится дешевле из-за меньшего расхода древесины и высокой скорости сборки. Но итоговая стоимость формируется с учетом отделки и уровня теплоизоляции.
Оптимальными считаются теплые полы, газовые или твердотопливные котлы. Наиболее комфортный и энергоэффективный вариант — теплый пол.
Наиболее благоприятный период — весна и лето. В это время проще работать с фундаментом и избежать проблем с влажностью.
Да, газификация возможна при соблюдении всех технических норм и получении разрешительных документов.
Основные причины — избыток влаги, нарушения в гидроизоляции и плохая вентиляция.
В среднем возведение занимает 2–4 месяца, в зависимости от площади и сложности проекта.
Популярные проекты
Каркасный дом "Классик 27"

Площадь 111 М²
Этажи 1 ЭТАЖ
Фундамент СВАЙНО-РОСТВЕРКОВЫЙ
Размеры 13.1Х9.2 М + 3.6Х2.3 М
Комнаты 3 СПАЛЬНИ
Цена: 3 065 р/м²

ПОДРОБНЕЕ
Каркасный дом "Классик 3"

Площадь 80 М²
Этажи 1 ЭТАЖ
Фундамент СВАЙНО-РОСТВЕРКОВЫЙ
Размеры 10Х8 М
Комнаты 2 СПАЛЬНИ
Цена: 2 586 р/м²

ПОДРОБНЕЕ
Терраса "Дзержинск с окнами"

Площадь 23 М²
Вид террасы ОСТЕКЛЕННАЯ
Размеры 7.5Х3 М
Цена: 1 434 р/м²

ПОДРОБНЕЕ
Терраса "Мелковичи"

Площадь 13 М²
Вид террасы ОСТЕКЛЕННАЯ
Размеры 2.9Х5.45 М
Цена: 1 969 р/м²

ПОДРОБНЕЕ
Автонавес "Ждановичи"

Площадь 31 М²
Количество мест 2 МЕСТА
Хозблок БЕЗ ХОЗ. БЛОКА
Размеры 5.4Х5.8 М
Крыша ОДНОСКАТНАЯ
Цена: 494 р/м²

ПОДРОБНЕЕ
Автонавес "Мядель"

Площадь 36 М²
Количество мест 2 МЕСТА
Хозблок БЕЗ ХОЗ. БЛОКА
Размеры 6Х6 М
Крыша ДВУСКАТНАЯ
Цена: 680 р/м²

ПОДРОБНЕЕ
Баня "Модерн"

Площадь 24 М²
Назнаение ДЛЯ ДОМА/АРЕНДЫ
Размеры 6Х4 М
Терраса С ТЕРРАСОЙ
Цена: 2 583 р/м²

ПОДРОБНЕЕ
Беседка из бруса "88"

Площадь 12.6 М²
Вид беседки ОТКРЫТАЯ
Барбекю БЕЗ БАРБЕКЮ
Размеры 3.55х3.55 М
Санузел БЕЗ САНУЗЛА
Хоз.блок БЕЗ ХОЗ. БЛОКА
Цена: 817 р/м²

ПОДРОБНЕЕ