Модульный дом-конструктор "Базовая модель-1"

Немного о проекте
Перед вами — базовый жилой модуль. Он полностью готов: внешняя и внутренняя отделка, инженерные коммуникации. Достаточно смонтировать фундамент на участке — и дом можно завозить.
Характеристики

Дом-конструктор "Базовая модель-1"- о проекте

Представляем проект, который меняет представление о загородном строительстве. 🏗️

Перед вами — базовый жилой модуль. Он полностью готов: внешняя и внутренняя отделка, инженерные коммуникации. Достаточно смонтировать фундамент на участке — и дом можно завозить.

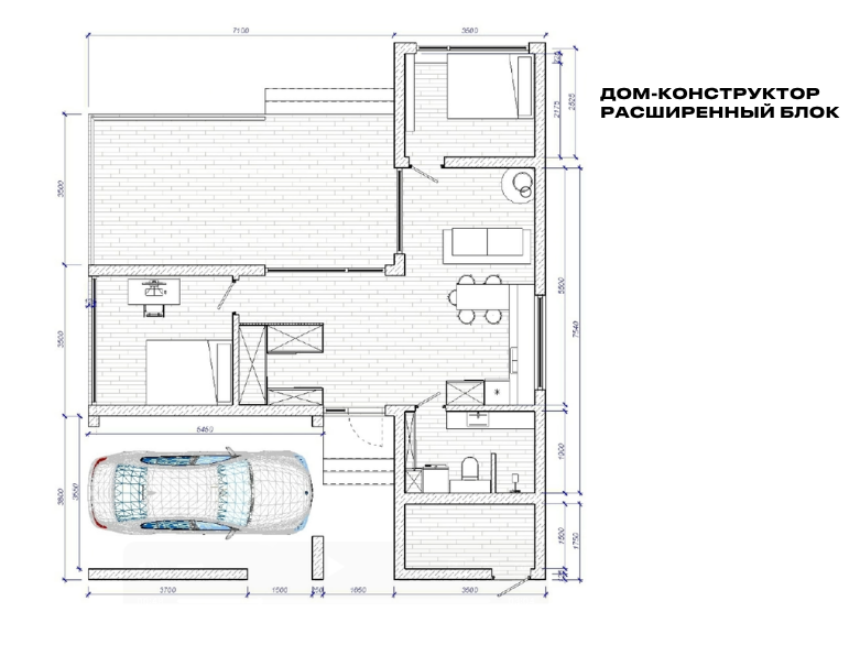
Что внутри базовой модели?
— Санузел
— Кухня-столовая
— Гостиная
— Хозпомещение

🔁 Главная особенность — возможность расширения.
Входная группа демонтируется, а на её место встает дополнительный Т-образный модуль. В результате появляется:
— спальня с панорамным остеклением
— гардеробная
— новая входная зона

Опции расширения:
📌 Терраса 3,5×7 м
📌 Автонавес 3,8×7 м с крыльцом

На 3D-визуализации хорошо видно, как из одного компактного блока вырастает полноценный дом с парковкой и зоной отдыха.

Стройте без лишнего стресса. Модульный принцип — это свобода. Начните с базы, а остальное добавите, когда будет нужно.

Комплектация дома
Фундамент
свайно забивной / свайно винтовой
Стены
Каркасные
Утепление стен

150 мм

Утепление перекрытия
Утепление крыша
150 мм
Внутренняя отделка пола
ОСБ / ЦСП
Внутренняя отделка стен
Имитация бруса
Внутренняя отделка потолок
Имитация бруса
Внутренняя отделка санузел
Имитация / гипсокартон влагостойкий
Внутренняя отделка котельная
Внешняя отделка стен

Доска 150х20, 80х20; профлист

Кровля
ЦСП и наплавляемая кровля битумная
Водосточная система
Терраса/крыльцо (пол)

Этапы работ
1. Осмотр участка

Проведение инженерно-геологических изысканий для определения оптимального типа фундамента

2. Разработка проекта

Создание планировочного решения и визуального облика дома, части АР, КР, смета

3. Возведение фундамента

Возведение фундамента согласно проекту

4. Сборка силового каркаса дома

Возведение нижней обвязки, лаги пола, несущей стены, перегородки, перекрытий (по необходимости), стропильной системы

5. Наружная и внутренняя отделка

Выполнение работ по монтажу отделочных материалов согласно решению заказчика и архитектора

6. Фасадные работы

Работы по установке окон, дверей, прокладка коммуникаций

Преимущества заказа каркасного дома у нас

ВИДЕООТЗЫВЫ о наших проектах

Отзывы о нас

0-03
10.04.2025
Огромное спасибо вам, вашей команде, всем, кто был вообще связан с нашим проектом, воплотил нашу мечту. Вот обидно было, что так быстро закончилось наше сотрудничество) Мы решали все вопросы через телеграм, отвечали сразу же, что-то мы даже поменяли в процессе. Все профессионалы, молодцы! Максим архитектор молодец. То, что я просила, он все сделал, поменял, помогал, советовал. Виталий мастер, тоже молодец, знает свое дело и делает это быстро и качественно, и хорошо. И менеджер Анна всегда была на связи, писала и звонила. Владимир, спасибо и вам за вашу команду!
Ирина
0-03
23.03.2025
Конечно будем советовать вашу компанию, нам все понравилось. На самом деле не такое и длительное было сотрудничество, потому что ваша компания делала все оперативно и в срок. Огромный плюс это то, что минимальное присутствие заказчика на объекте. Ну и конечно же ты потом понимаешь, что все сделано качественно, все работает, все можно пользоваться и прекрасный вид. Негативных моментов с вами не возникало. Нам было, если честно, с вами в кайф работать.
Александр
0-03
15.03.2025
Удалось посотрудничать самым приятным образом! Мы воплотили в жизнь свою давнюю мечту. Предложение было разработано архитектором Максимом и нам очень понравилось, что получилось по итогу. Мы получаем большое удовольствие! Нам очень-очень понравилось сотрудничество с компанией. Не было ни какой головной боли, никаких вопросов. Все пожелания были учтены, самым наилучшим способом воплощены в жизнь самым наилучшим образом. И вот, наступит новый дачный сезон, и мы будем с удовольствие пользоваться новым хозпомещением!
Наталья
0-03
10.03.2025
Я нашла эту компанию через интернет, где они выложили свои работы на которые я посмотрела. Мне понравилось. И я решила обратиться именно к ним, по их визуалу я поняла, что это моя компания. Все что было спроектировано оно и воплотилось вот уже в террасу. И терраса мне понравились и строители, которые у меня работала.
Ольга
0-03
28.02.2025
Всем огромная благодарность!!! Всё чётко, аккуратно, надёжно и красиво!!!
Дмитрий Денисович
0-03
20.08.2024
Строительство автонавеса прошло без проблем. Команда СтройЛюкс профессиональна и внимательна к деталям. Я остался очень доволен качеством работы и рекомендую их всем! На объекте работал мастер Алексей.
Станислав
Еще больше отзывов о нашей работе !
Часто задаваемые вопросы
При правильном строительстве и уходе каркасный дом может прослужить 50–100 лет. Срок зависит от качества материалов, защиты от влаги и соблюдения строительных технологий.
Да, при хорошей теплоизоляции каркасные дома удерживают тепло не хуже кирпичных и деревянных. Главное — выбрать эффективное отопление.
Каркасный дом может выдерживать температуру до -50°C, если он утеплен в соответствии с климатическими нормами.
Обычно для каркасных домов используется свайно-винтовой, ленточный или плитный фундамент. Выбор зависит от грунта, особенностей климата и планируемого бюджета.
Каркасный дом, как правило, дешевле, так как требует меньше древесины, а монтаж быстрее. Но окончательная стоимость зависит от отделки и утепления.
В каркасных домах используют тёплый пол, газовые котлы или твердотопливные печи. Наиболее эффективным решением считается тёплый пол.
Оптимально начинать строительство весной или летом, чтобы избежать проблем с бетонированием фундамента и влагой.
Да, но для этого нужно соблюсти нормативы и получить разрешение на газификацию.
Причинами могут стать неправильная гидроизоляция, плохая вентиляция и излишняя влажность.
В среднем от 2 до 4 месяцев, в зависимости от площади и сложности конструкции.
Похожие проекты
Каркасный дом "Классик 27"

Площадь 111 М²
Этажи 1 ЭТАЖ
Фундамент СВАЙНО-РОСТВЕРКОВЫЙ
Размеры 13.1Х9.2 М + 3.6Х2.3 М
Комнаты 3 СПАЛЬНИ
Цена: 3 065 р/м²

ПОДРОБНЕЕ
Каркасный дом "Классик 3"

Площадь 80 М²
Этажи 1 ЭТАЖ
Фундамент СВАЙНО-РОСТВЕРКОВЫЙ
Размеры 10Х8 М
Комнаты 2 СПАЛЬНИ
Цена: 2 586 р/м²

ПОДРОБНЕЕ
Терраса "Дзержинск с окнами"

Площадь 23 М²
Вид террасы ОСТЕКЛЕННАЯ
Размеры 7.5Х3 М
Цена: 1 434 р/м²

ПОДРОБНЕЕ
Терраса "Мелковичи"

Площадь 13 М²
Вид террасы ОСТЕКЛЕННАЯ
Размеры 2.9Х5.45 М
Цена: 1 969 р/м²

ПОДРОБНЕЕ
Автонавес "Ждановичи"

Площадь 31 М²
Количество мест 2 МЕСТА
Хозблок БЕЗ ХОЗ. БЛОКА
Размеры 5.4Х5.8 М
Крыша ОДНОСКАТНАЯ
Цена: 494 р/м²

ПОДРОБНЕЕ
Автонавес "Мядель"

Площадь 36 М²
Количество мест 2 МЕСТА
Хозблок БЕЗ ХОЗ. БЛОКА
Размеры 6Х6 М
Крыша ДВУСКАТНАЯ
Цена: 680 р/м²

ПОДРОБНЕЕ
Баня "Модерн"

Площадь 24 М²
Назнаение ДЛЯ ДОМА/АРЕНДЫ
Размеры 6Х4 М
Терраса С ТЕРРАСОЙ
Цена: 2 583 р/м²

ПОДРОБНЕЕ
Беседка из бруса "88"

Площадь 12.6 М²
Вид беседки ОТКРЫТАЯ
Барбекю БЕЗ БАРБЕКЮ
Размеры 3.55х3.55 М
Санузел БЕЗ САНУЗЛА
Хоз.блок БЕЗ ХОЗ. БЛОКА
Цена: 817 р/м²

ПОДРОБНЕЕ